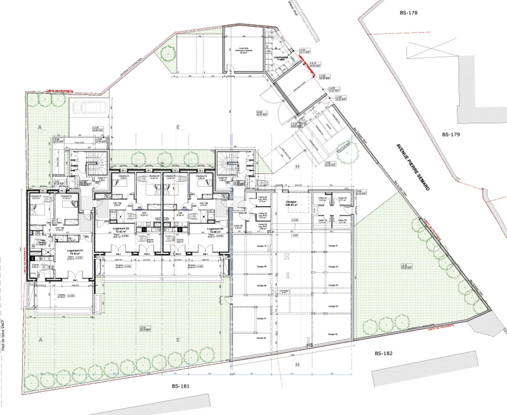
Description : Création d’un immeuble collectif de quinze appartements
Localisation : Gard (30)
Surface : 980 m2
5 rue du Roi René
84 000 AVIGNON
contact@renaud-architecture.fr
Tél. 09 83 59 81 94
Avignon
Luberon
Alpilles
Drôme Provençale
Occitanie
Côte d’Azur
….